PROPERTY FOR SALE OR RENT

SEARCH
RECENTLY SOLD

1 West Stewart Place Hawick TD9 8BH.

Rooms

2 Public Rooms
4 Bedrooms
2 Bathrooms

Highlights

Gas Central Heating
Double Glazing
Garden
Private Parking
Investment Potential

Full Description

Built around 1890, of sandstone under a pitched slate roof, this Victorian styled family property is full of character and original features.

Located at the start of West Stewart Place, just off Wilton Hill, it is a very desirable area in which to reside. An easy walk to the town centre, local schools and services.

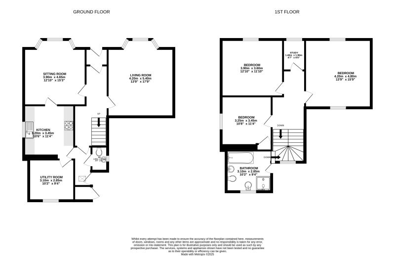
The accommodation comprises; Vestibule, entrance Hallway, Living Room, sitting room, Kitchen, Utility Room and WC on the ground floor. On the first floor there are Three double bedrooms, single bedroom/study and a family bathroom. In total around 159 SQM of living space.

Benefitting from GCH & UPVC double glazing, mains drainage and water.

The property is presented in clean and tidy order, but would benefit from a degree of modernisation.
A rare development project with the scope to extend if required and a great opportunity for someone to "make it their own".

Outside there are gardens to the front and side and a driveway, leading to a double garage. To the rear there is a very generous private garden, laid mainly to lawn with a large outhouse.

A rare opportunity, to purchase an imposing property in a most sought after location.

Must be viewed to appreciate its charm, character and excellent development potential.

More Information

Garage
Parking Nearby
Easier Access
Living Level Toilet
Wide Doors
Council Tax Band: F Verify
EPC Rating: D

What We Like...

Location, Size, Large Private Garden, Development Potential.

Room Specification

Room Size (m) Size (feet)  
VESTIBULE 
HALLWAY
SITTING ROOM 
3.90m x 4.65m
12'9'' x 15'3''
KITCHEN 
3.20m x 3.45m
10'5'' x 11'3''
UTILITY ROOM 
3.10m x 2.85m
10'2'' x 9'4''
WC
1.02m x 1.56m
3'4'' x 5'1''
LIVING ROOM 
4.20m x 5.40m
13'9'' x 17'8''
BATHROOM 
3.10m x 2.85m
10'2'' x 9'4''
BEDROOM 1
4.20m x 4.80m
13'9'' x 15'8''
BEDROOM 2
3.90m x 3.60m
12'9'' x 11'9''
BEDROOM 3
3.25m x 3.45m
10'7'' x 11'3''
BEDROOM 4/STUDY
1.40m x 1.96m
4'7'' x 6'5''

Viewing through Jim Hay, 100% accompanied.

Best Local Estate Agency - Scottish Borders, Real Estate and Property Awards 2015

Important Notice:

Jim Hay Estate Agents Ltd, their clients and any joint agents give notice that:

1. They are not authorised to make or give any representations or warranties in relation to the property either in writing or by word of mouth. Any information given is entirely without responsibility on the part of the agents or the sellers. These particulars do not form part of any offer or contract and must not be relied upon as statements or representations of fact.

2. Any areas, measurements or distances are approximate. The text, photographs and plans are for guidance only and are not necessarily comprehensive and it should not be assumed that the property remains as photographed. Any error, omission or mis-statement shall not annul the sale, or entitle any party to compensation or recourse to action at law. It should not be assumed that the property has all necessary planning, building regulation or other consents, including for its current use. Jim Hay Estate Agents Ltd. have not tested any services, equipment or facilities. Purchasers must satisfy themselves by inspection or otherwise and ought to seek their own professional advice.

3. All descriptions or references to condition are given in good faith only. Whilst every endeavour is made to ensure accuracy, please check with us on any points of especial importance to you, especially if intending to travel some distance. No responsibility can be accepted for expenses incurred in inspecting properties, which have been sold or withdrawn.

WHY NOT CHECK THESE OTHER PROPERTIES
NEW
Image of Industrial Units & Yard 7C Spylaw Road
Kelso Kelso
Industrial Units & Yard 7C Spylaw Road Kelso TD5 8DL.

Large Industrial Units & Yard, located in Industrial park on the outskirts of Kelso

 

In Region Of - £250000 SHEDS TO BE DEMOLISHED LEAVING CLEAR SITE

0 0 0
NEW
Image of 29-31 High Street 
Jedburgh Jedburgh
29-31 High Street Jedburgh TD8 6DF.

Detailed planning for 7 residential flats, on main high streeet in Jedburgh.

 

Offers Over - £150,000

0 0 0
NEW
Image of 14 Ivanhoe Terrace
Hawick Hawick
14 Ivanhoe Terrace Hawick TD9 8EE.

Spacious, well presented 3 bed family property with front and rear gardens

 

Guide Price - £145,000

3 1 1